Preservar estrutura


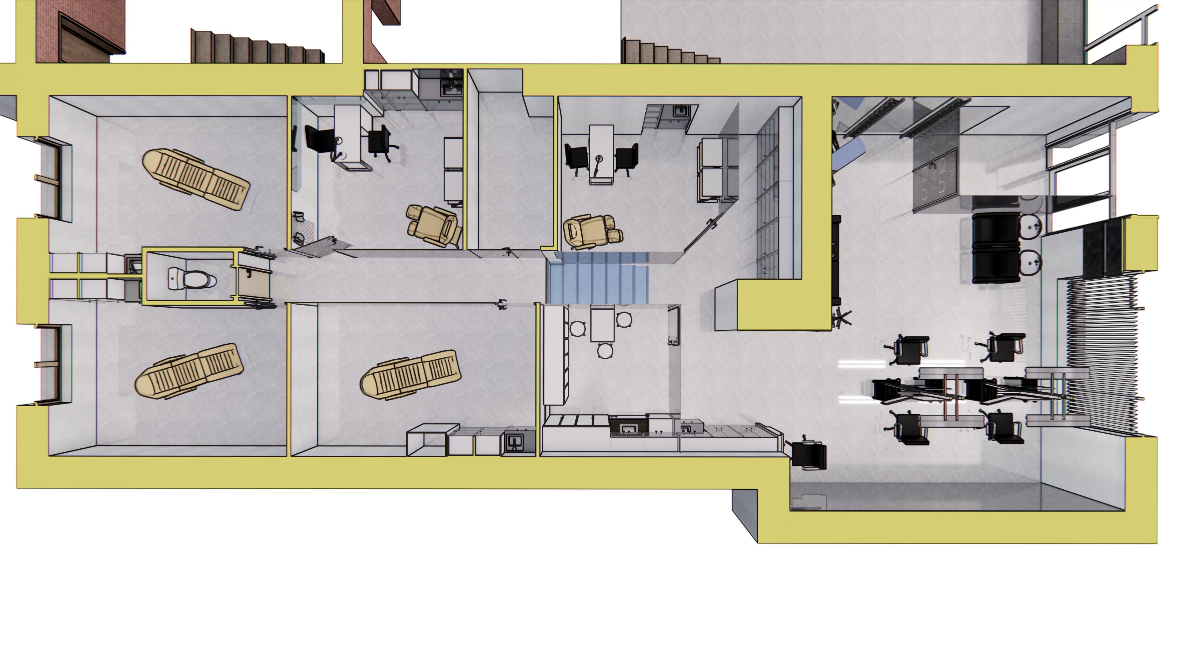
An incredibly lifelike, richly detailed, photorealistic floorplan photo of a modern interior featuring a home office and various salon-style rooms. The scene is illuminated by crisp, cool lighting, creating a clean, contemporary, and elegant atmosphere. Captured with a high-angle, aerial perspective, emphasizing the layout and design, this photograph showcases white and glittering furniture, white tiled floors, and light gray walls. In the upper left, two rooms each contain what appear to be massage tables and storage units, with one also featuring a small restroom. Moving towards the center, two additional rooms depict office setups with desks and chairs, one with a small seating area. A central staircase with blue-toned steps connects these areas. To the right, a more expansive space appears to be a salon or spa, with multiple styling chairs arranged around sleek, modern workstations, and a large mirror reflecting the clean lines of the room. The rightmost edge of the photograph reveals a more open area with large windows offering a glimpse of an exterior. The overall impression is one of organized, functional, and stylish contemporary living and working spaces.